Großraum & Einzelbüros mit Kantine,ab 2 EUR/m²!*

66123 Saarbrücken

Immobiliennummer 80186024, Miete, Büro-/Laborgebäude, Bürofläche
716.55 m2
Fläche
auf Anfrage
Nettomiete
k.A.
Baujahr

Immobilien-Eigenschaften

Straße: Neugrabenweg 2-4
Postleitzahl: 66123
Ort: Saarbrücken
Nettomiete: auf Anfrage
Preis / m2: 2,00 €
Kaution: 3 Bruttowarmmieten
Makler-Provision: Die Vermietung erfolgt provisionsfrei!

Ausstattungsmerkmale

Böden: Teppichboden
Erschließung: voll erschlossen
Gewerbe: Deckenbeleuchtung, Kantine, Raumaufteilung flexibel, Sonnenschutz
Heizungsart: Etagenheizung
Kommunikation: DSL-Anschluss
Serviceleistungen: Wachdienst
Sonstiges/Wohnen: barrierefrei, rollstuhlgerecht
Stellplatz: Stellplatz
Wohnungslage: Erdgeschoss


Lage

Das Sirius Office Center befindet sich in zentraler Lage im Stadtteil St. Johann, unweit des Saarbrücker Hauptbahnhofs, und ist daher auf verschiedenen Wegen bequem zu erreichen. Autofahrer können die B41 nutzen, die sich nur 500 Meter entfernt befindet und einen schnellen Zugang zur Autobahn A620 ermöglicht. Für die Anreise mit öffentlichen Verkehrsmitteln empfiehlt sich die Nutzung des nahegelegenen Hauptbahnhofs, der auch den Busbahnhof direkt daneben hat.

* Bequeme Anfahrt *

Hauptbahnhof Saarbrücken: 1,5 km
Flughafen Saarbrücken: 13,5 km
Anschluss an die B 41: 0,5 km

Objekt

Im Sirius Office Center Saarbrücken finden Sie eine vielfältige Auswahl an Gewerbeflächen: Die Büros ab 20 m² bis hin zu kompletten Büroetagen sind ideal für Einzelunternehmer, Freelancer, Projektteams und Unternehmen jeder Größe. Für Meetings und Veranstaltungen steht ein modernes Konferenzzentrum zur Verfügung. Zusätzlich zu den Büros können Sie hier auch Lagerräume ab 10 m² sowie Werkstätten und Hallen in verschiedenen Größen mieten, um Ihre Geschäftstätigkeiten optimal zu unterstützen.
Der Standort hat bereits viele Mieter aus den unterschiedlichsten Branchen angezogen und punktet mit Services vor Ort, etwa E-Ladestationen, 24/7 Zugang und persönlichem Ansprechpartner.

Ausstattung

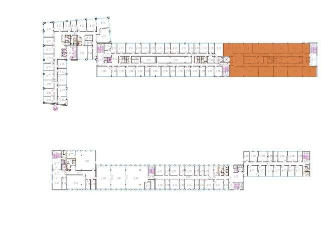
+ Geräumige Fläche: 716,55 m² im 3.Obergeschoss, inklusive 192,77 m² Nebennutzfläche.
+ Hochmoderne Technik: Ausgestattet mit DSL und Deckenbeleuchtung.
+ Komfortable Ausstattung: Teppichboden/Nadelfilz und effiziente Etagenheizung sorgen für ein angenehmes Arbeitsumfeld.
+ Maximale Sicherheit: Voll erschlossen mit Sicherheitsdienst/Wachdienst für umfassenden Schutz.
+ Sanitäre Anlagen: Separate Damen- und Herren-WCs bieten zusätzlichen Komfort.
+ Attraktive Annehmlichkeiten: Kantine, Teeküche und Sonnenschutz für optimale Arbeitsbedingungen.
+ Bequeme Parkmöglichkeiten: Stellplätze zur Anmietung verfügbar.
+ Flexible Verfügbarkeit: Bezug nach Absprache möglich. Mietpreis ab 2 EUR/m² (zzgl. Nebenkosten und MwSt.).

Rufen Sie am besten gleich an unter 0800 40 40 880 35 – unser Team steht sofort zur Verfügung! Wir freuen uns sehr, Sie persönlich zu beraten. Eine schnelle Besichtigung richten wir ebenfalls sehr gern für Sie ein.
Entdecken Sie auch zahlreiche weitere Alternativen, die wir Ihnen gerne unverbindlich vorstellen können.

Sonstiges

*Das Angebot gilt für Neukundenverträge, die innerhalb von 72 Stunden nach Besichtigung unterzeichnet werden. Der Sonderpreis bezieht sich auf die Nettokaltmiete und wird ab einer Laufzeit von 12 Monaten in den ersten 2 Monaten gewährt. Das Angebot gilt im Zeitraum 08.09.25-31.03.26 auf ausgewählte Flächen und ist abhängig von Verfügbarkeit, nicht kombinierbar mit anderen Aktionen und Rabatten.

+++ Innovative Technologielösungen am Standort für Sie als Mieter +++

Mit unserem All-in-One-Service vermeiden Sie lange Wartezeiten und mühsame Kommunikation mit verschiedenen Anbietern. Unser Anschluss ist sofort verfügbar und kann ab 1 Monat gemietet werden.

+ Highspeed-Internet mit 100 Mbit/s über Glasfaserleitungen. (symmetrische Upload-/Downloadgeschwindigkeit)

+ Professionelle Telefonanlage mit Wildix-Telefonen.

+ 3.000 Freiminuten in 34 Länder, erreichbar über Cloud-basierte Lösungen.

+ Unser kompetentes Team vor Ort unterstützt Sie bei allen Fragen rund um unsere Services.

Die Abbildungen bzw. die Fotos der Mietflächen dienen lediglich der optischen Orientierung. Die Abbildungen der Mietflächen begründen keinen Anspruch auf ihren Erhalt und bedeuten nicht, dass diese, wie abgebildet, auch zur Verfügung stehen. Für genauere Informationen zu den Mietflächen ist die Produktbeschreibung maßgeblich.

Fahrzeit zur Auto...

8,00

Fahrzeit zum Flug...

17,00

Fahrzeit zum Bahnhof

10,00


Anbieterkontakt

Firmenname: Sirius Facilities GmbH
Ansprechpartner: Felix Meier

Kontaktieren Sie uns


Diese Immobilie wird von einem Teilnehmer des Immowelt-Marktplatz bereitgestellt.
Kontaktieren Sie uns